Proyectos

Reforma integral, luz y balcón en Malilla

Valencia

Piso reformado en venta en Calle Joaquín Benlloch, 41 (Malilla, Valencia)

Directo del propietario, sin comisiones ni gastos de gestión

399.000 €

¿Por qué elegir este hogar?

Vivienda luminosa reformada con materiales de primera calidad, pensada para disfrutar desde el primer día. Distribución cómoda con 3 dormitorios y 2 baños, balcón exterior y estancias (salvo baños) a fachada, lo que aporta luz natural durante todo el día. La cocina, con gran isla central, se integra como auténtico punto de encuentro, con mobiliario a medida y zonas de trabajo generosas. La reforma, realizada con criterio profesional, se entrega amueblada y equipada (electrodomésticos, TV, A/A, carpintería Climalit y suelo porcelánico). Ubicada en Malilla (Quatre Carreres), una zona en plena proyección, rodeada de servicios y muy bien conectada con el centro.

Distribución y características destacadas:

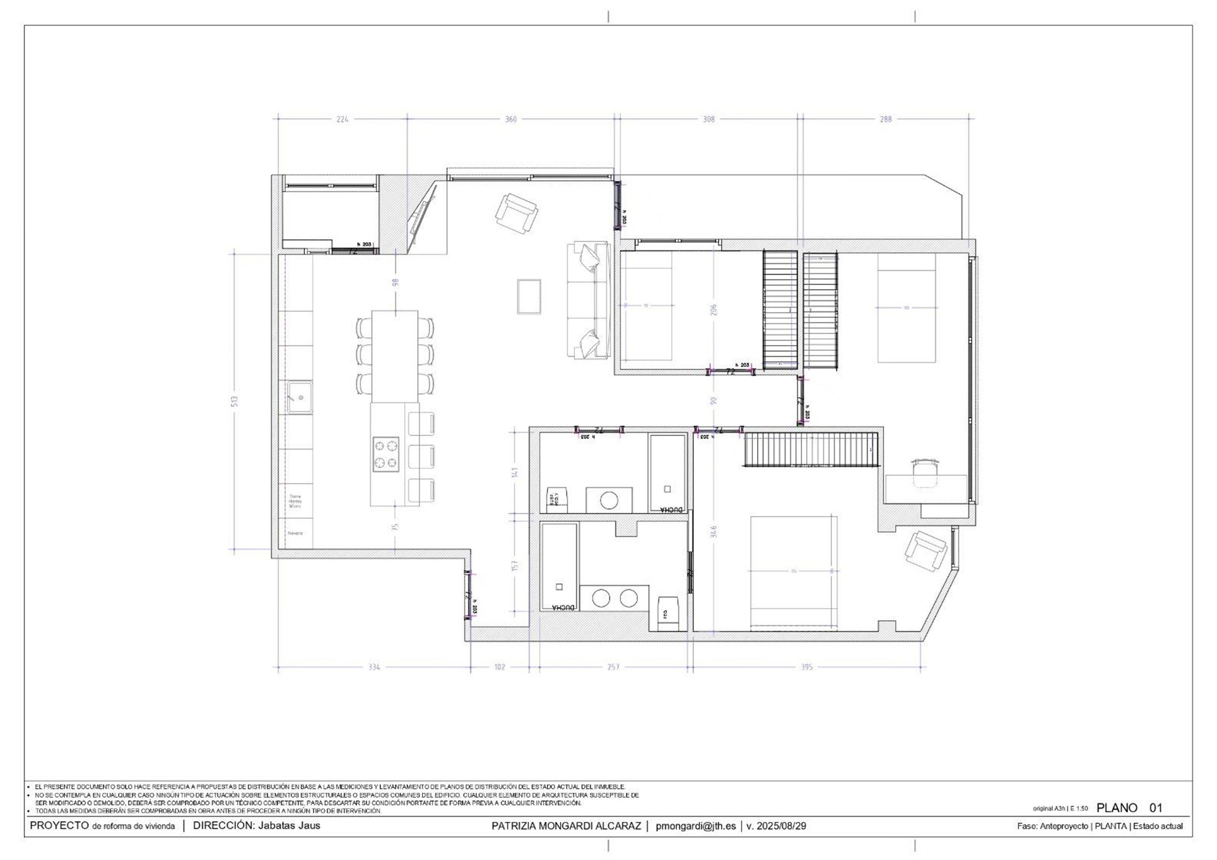
  • → 89 m² construidos / 78 m² útiles; 3 dormitorios y 2 baños.
  • → Planta 3ª exterior con ascensor; muy luminosa (estancias exteriores).
  • → Balcón a calle; orientación norte-oeste.
  • → Cocina con isla y mobiliario a medida; diseño actual.
  • → Amueblado y equipado: electrodomésticos, TV, A/A, carpintería Climalit.
  • → Suelo porcelánico; reforma integral reciente.
  • → Barrio Malilla (Quatre Carreres), Valencia.
  • → Precio: 399.000€

¿Hablamos?

Llámanos o escríbenos por WhatsApp, o si lo prefieres rellena nuestro formulario y nos pondremos en contacto.

Fotos

Vídeo

Plano

Plano de la vivienda
Características básicas
Tipo de Propiedad
Piso
Superficie construida
89 m² (78 m² útiles)
Habitaciones
3
Baños
2
Terraza/Balcón
Sí (exterior a calle)
Orientación
Noroeste
Conservación
Segunda mano / buen estado
Año de construcción
1972
Calefacción
Individual, bomba frío/calor
Edificio
Planta
3ª exterior
Ascensor
Acceso PMR
Acceso exterior adaptado
Equipamiento
Aire acondicionado
Amueblado y equipado
Sí (electrodomésticos, TV, mobiliario)
Carpintería
Climalit
Suelo
Porcelánico
Certificado energético
Consumo
108 kWh/m²·año
Emisiones
20 kg CO₂/m²·año

Mapa