Proyectos

Tu nueva vida en el corazón de Valencia

Valencia

Piso en venta en Calle de Colón (Sant Francesc, València)

398.000 €

¿Por qué elegir este hogar?

Imagina despertar cada día en una de las calles más exclusivas de Valencia, frente a El Corte Inglés de Colón, rodeado del mejor ambiente, tiendas, restaurantes y todo lo que hace especial vivir en el centro.

Esta vivienda lo tiene todo: un edificio emblemático con portero, dos ascensores y un estilo elegante. Un hogar lleno de luz, con terraza privada, salón amplio, cocina office moderna y dormitorio con baño en suite. Se entrega lista para entrar a vivir, con electrodomésticos, TV, muebles y decoración incluidos. Perfecta para vivirla o invertir con seguridad, por su alta rentabilidad y gran potencial de revalorización en la zona más cotizada de Valencia.

Viviendas así no aparecen todos los días. ¡No dejes que se te escape!

Distribución y características destacadas:

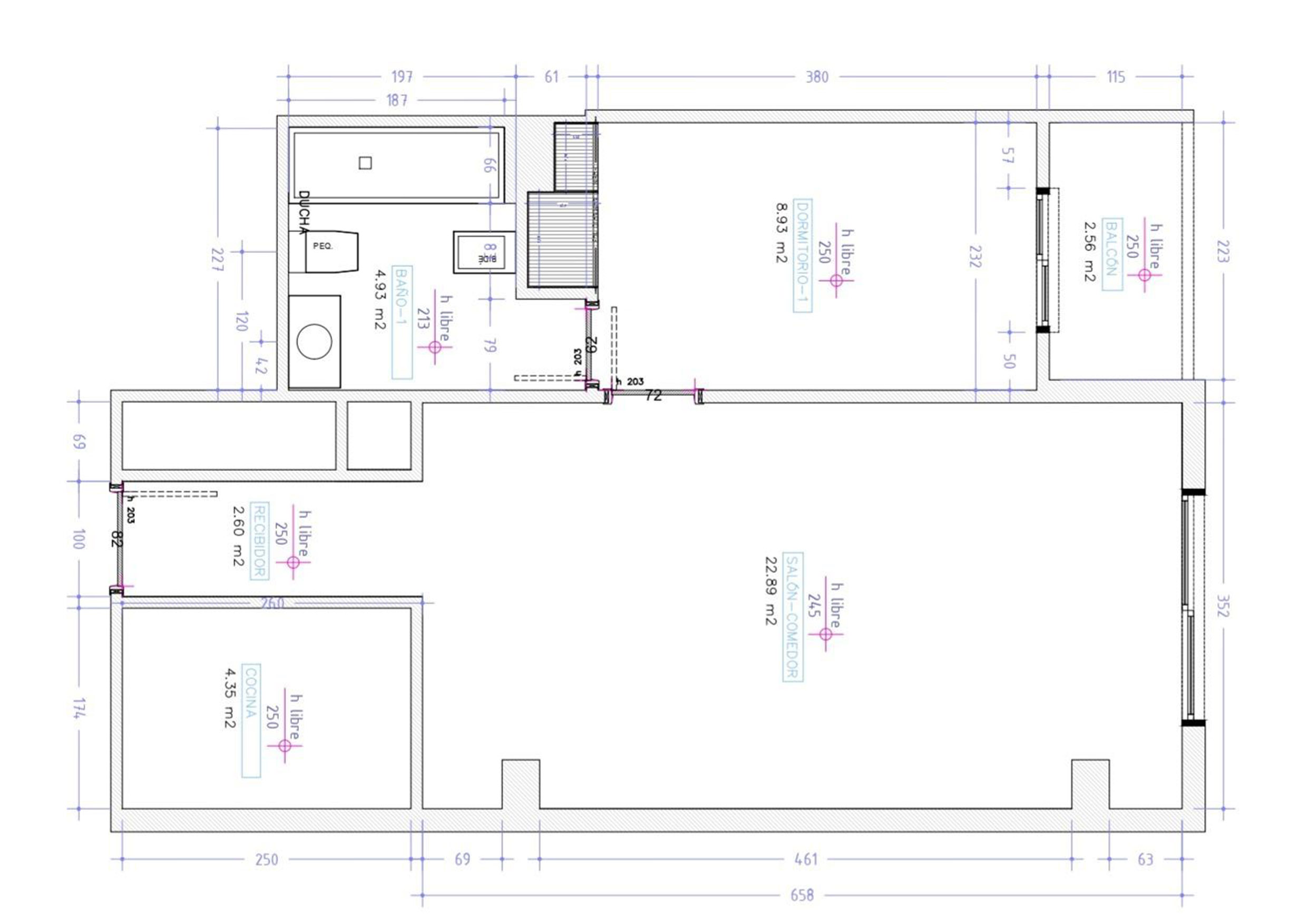
  • → 54 m² construidos y 1 habitación.
  • → Planta 7ª exterior, edificio con 2 ascensores y portero.
  • → Terraza/balcón privado y salón amplio muy luminoso.
  • → Cocina office moderna; dormitorio con baño en suite.
  • → Amueblado y equipado: electrodomésticos, TV, mobiliario y decoración.
  • → Segunda mano / buen estado con armarios empotrados.
  • → Garaje opcional (+100 €).
  • → Ubicación prime: Calle de Colón, Sant Francesc (València).

Fotos

Plano

Plano de la vivienda

Vídeo

Características básicas
Tipo de Propiedad
Piso
Superficie construida
54 m²
Habitaciones
1
Baños
1
Terraza/Balcón
Plaza de garaje
Opcional (100 €)
Conservación
Segunda mano / buen estado
Armarios empotrados
Año de construcción
1985
Calefacción
No dispone
Edificio
Planta
7ª exterior
Ascensor
Portero
Equipamiento
Amueblado y equipado
Sí (muebles, decoración, TV y electrodomésticos)
Certificado energético
Consumo
169 kWh/m²·año
Emisiones
29 kg CO₂/m²·año

Mapa