Proyectos

Reforma integral, amplitud y luz en Oltà - Quatre Carreres

Valencia

Estrena hogar en la calle d'Oltà-Quatre Carreres (Valencia)

459.000 €

¿Por qué elegir este hogar?

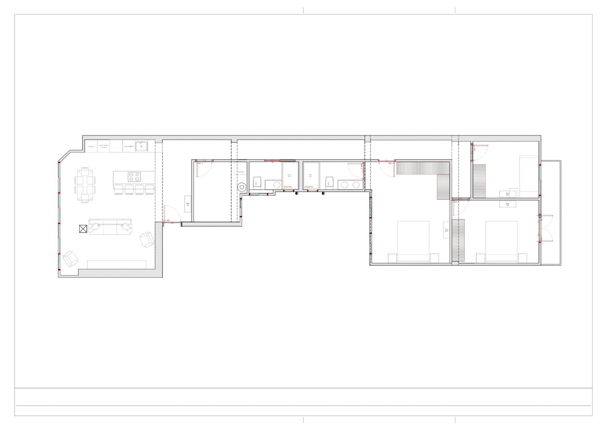
Vivienda de 123 m² completamente reformada con materiales de alta calidad, lista para entrar a vivir. Distribución amplia y funcional con 4 dormitorios y 2 baños. Doble orientación a dos calles que aporta luz natural durante todo el día y balcón para disfrutar del exterior.

La cocina, diseñada para el día a día y los momentos especiales, integra Cooking Surface de última generación (inducción oculta), amplias superficies de trabajo, mobiliario con gran capacidad y galería independiente con lavadora y secadora. La reforma, realizada por diseñadora, se entrega amueblada y equipada (electrodomésticos, TV, A/A, carpintería Climalit), con un resultado elegante, confortable y muy práctico.

Ubicada en el barrio de Malilla (Quatre Carreres), una zona viva y mediterránea, con servicios y buena conexión con el resto de la ciudad.

Distribución y características destacadas:

  • → 123 m² construidos, 4 dormitorios y 2 baños.
  • → Planta 5ª exterior con ascensor, doble orientación a dos calles.
  • → Balcón/terraza y estancias muy luminosas.
  • → Cocina con Cooking Surface (inducción integrada oculta) y galería de lavado.
  • → Reforma integral diseñada por profesional; amueblada y equipada (A/A, TV, electrodomésticos).
  • → Carpintería Climalit y acabados de calidad.
  • → Precio con todo incluido,listo para entrar a vivir
  • → Precio: 459.000€
  • → Barrio Malilla (Quatre Carreres), Valencia.
  • → Garaje: Opcional.

Concierta una visita sin compromiso. ¡Te sorprendera!

¿Hablamos?

Llámanos o escríbenos por WhatsApp, o si lo prefieres rellena nuestro formulario y nos pondremos en contacto.

Fotos

Vídeo

Plano

Plano de la vivienda
Características básicas
Tipo de Propiedad
Piso
Superficie construida
123 m²
Habitaciones
4
Baños
2
Terraza/Balcón
Doble orientación
Sí (a dos calles)
Conservación
Segunda mano / buen estado
Orientación
Este
Año de construcción
1983
Calefacción
No dispone
Edificio
Planta
5ª exterior
Ascensor
Garaje
Opcional
Equipamiento
Aire acondicionado
Cooking Surface
Inducción integrada oculta
Galería/lavadero
Lavadora y secadora
Amueblado y equipado
Sí (electrodomésticos, TV, mobiliario)
Carpintería
Climalit
Certificado energético
Consumo
120 kWh/m²·año
Emisiones
20 kg CO₂/m²·año

Mapa